Walk-in COPEN PROJECT C-02-SPB80 crni profil
10.500,00 RSDDONJI DEO FLORA BELA 60 612
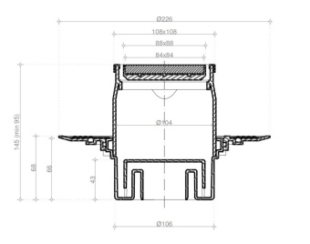
18.500,00 RSDSlivnik Confluo Plate 1 10X10 Vertikalni
1.400,00 RSD
Brend :Peštan
Boja : Hrom, keramika
Tip proizvoda : Kupatilski slivnik
Dužina, mm : 10
Karakteristike : Rešetka od nerđajućeg čelika, jednostavan je za čišćenje
Visina, mm : Visina ugradnje 69 ; Visina vodenog čepa 30
Širina, mm : 10
Tip drenažnog bunara : Vertikalna baza
Opis
Confluo Plate 2 u 1 pripada modelima Confluo standard slivnika. Karakteriše ga elegantan, svedeni dizajn i rešetka od nerđajućeg čelika koja ima opciju 2 dizajna. Pored atraktivnog izgleda, ima visok protok od 48l/min i jednostavan je za čišćenje. Uz ovaj slivnik, takođe dolazi i kompletan aksesoar i set za zaštitu prilikom izlivanja ravnajućeg sloja. Dostupni su modeli sa rešetkama 10x10mm i 15x15mm.
Glavne prednosti:
Visina ugradnje – 56–78 mm
Visoka stopa protoka – 48 l/min
Modularan i fleksibilan sistem – 6 baza, 2 modela sifoniranja
Laka instalacija i održavanje
Dodatne informacije
| Težina | 0,8 kg |
|---|---|
| Brend |
Deklaracija
EAN: 8600198374918
Kataloški broj: 13702567
Zemlja porekla: Srbija
Dobavljač: Peštan






