Zidna slavina sa pokretnim „L“ izlivom 449211
1.650,00 RSDOrmarić SUDO 60X80 F ROMA Mirela
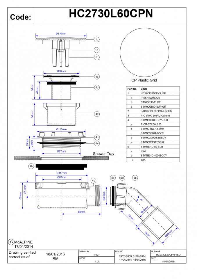
7.850,00 RSDSifon za tuš kadu McALPINE plitki fi90 kapa 110mm
2.000,00 RSD
Jedinice u paketu : kom
Proizvođač : McAlpine
Zemlja porekla : UK
Uvoznik : Minotti
Boja : Bela
Materijal : Plastika
Dostupno kao narudžbina na zahtev
Opis
PRIMENA:
Za ispuštanje vode iz tuš kada
Za tuš kade sa odvodnim izlazom Ø90 mm
Za tuš kade bez preliva
KARAKTERISTIKE:
Samočisteći dizajn sifona
Potpuno čisteći do odvodne cevi
Smanjena visina ugradnje 65 mm
Direktna veza na HT (nakon rezanja)
Polipropilen, termički i hemijski otporan, uzdužno zavaren
Dodatne informacije
| Težina | 0,37 kg |
|---|---|
| Brend |
Deklaracija
EAN: 8595580543716
Kataloški broj: HC2730L60CPN
Zemlja porekla: UK
Dobavljač: Minotti


